| ЭЛЕМЕНТ | Спецификация |
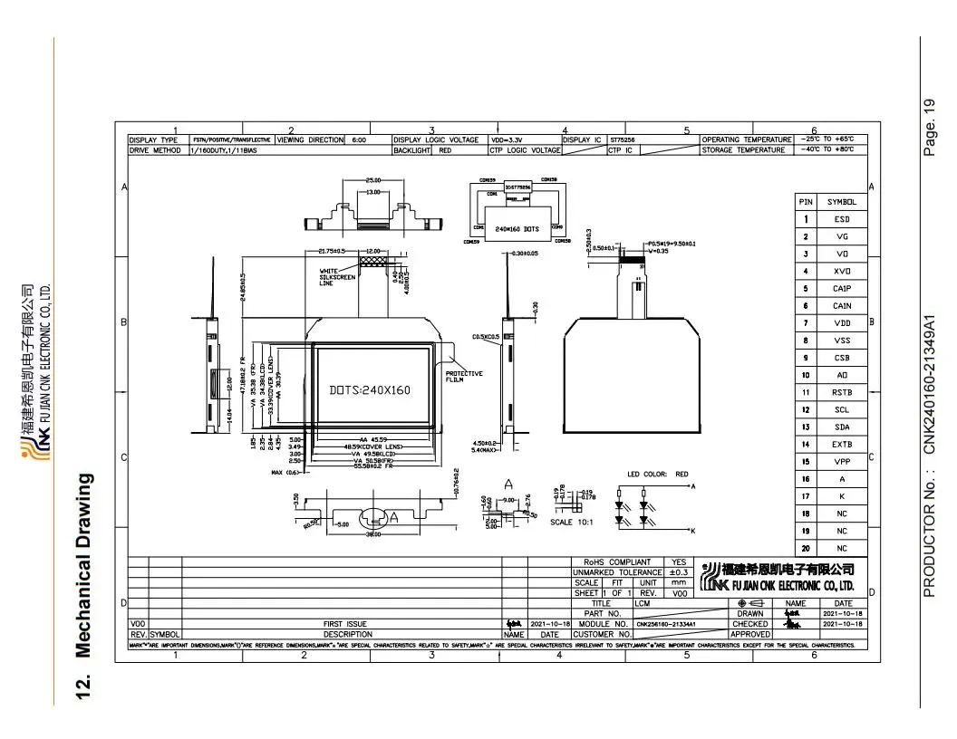
| Размер модуля | 55,58 (w) x47,18 (h) x5.4 (t) мм |
| Область просмотра отображения (объектив) | 48.59 (W) x33.39 (h) мм |
| Область просмотра отображения (ЖК -дисплей) |
49,58 (w) x34,38 (h) мм |
| Режим отображения |
FSTN -положительный трансфлексив |
| Просмотреть IC |
6 часов |
| Водитель ic |
ST75256 (или совместимый) |
| Подсветка |
Светодиод/красный |
| Масса | TBD |


